マンション間取りの種類とは?それぞれの特徴とおすすめの人を紹介
コラム間取り 2025.09.29

マンションの間取りには「田の字型」や「ワイドスパン」など、さまざまなタイプがあることをご存知でしょうか?
間取りは物件の住み心地や生活動線に直結するため、それぞれの特徴を理解した上で、自分のライフスタイルに合ったものを選択することが大切です。
今回はマンション間取りの中でも代表的な4つのタイプと、それぞれのメリット・デメリット、どのような人におすすめかをご紹介します。
自分に向いている間取りが知りたいという方は、ぜひ参考にしてください。
マンション間取りの種類

マンションの間取りには、大きく分けて「田の字・ワイドスパン・角住戸・センターイン」の4つの種類があります。
それぞれのタイプについて、福岡市中央区小笹に誕生予定の新築分譲マンション「エンクレストガーデン福岡」の間取りを用いて、詳しく見ていきましょう。
田の字型

間取り参考|エンクレストガーデン福岡「B6-1type 3LDK+WIC 59.88㎡」
※2024年12月26日時点での販売住戸間取り
「田の字型」は、マンションで最も一般的な間取りです。
縦方向の中央に廊下、横方向の中央に水回りが配置され、空間を「田の字」のように区切ることから「田の字型」と呼ばれています。
廊下と水回りを挟むように居室が配置されていることから、居室の独立性が高く、家族間でのプライバシーを確保しやすいのが特徴。
また上下階が同じ「田の字型」の間取りの場合、居室や水回りの位置が重なるため、騒音トラブルが発生しにくいというメリットもあります。
ただし外廊下に面している部屋は、窓の外を人が通るためプライバシーを確保しにくい点に注意。
最近では外廊下側の窓に目隠しを設けているマンションもあるので、購入を検討する際は必ずチェックしましょう。
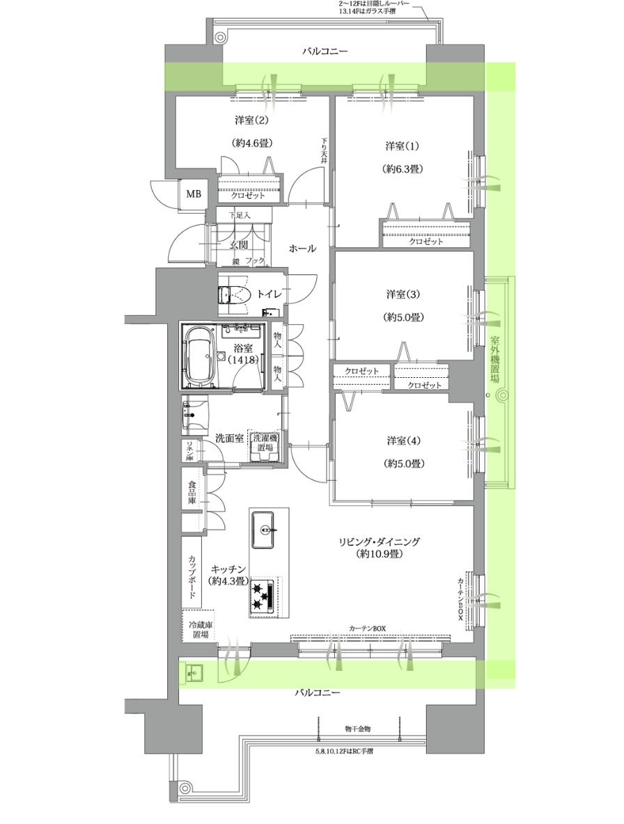
ワイドスパン

間取り参考|エンクレストガーデン福岡「C2type 3LDK+WIC 71.34㎡」
※2024年12月26日時点での販売住戸間取り
「ワイドスパン」とは、バルコニー側のスパン(間口)が広い間取りのこと。
バルコニー側の窓が多いため、たっぷりの日差しが降り注ぐ明るい住まいになるのが魅力です。
また田の字型の間取りに比べてホールの面積が小さくて済むため、その分各居室を広く取れるのも特徴のひとつ。
玄関からリビングまでや部屋同士の距離も近くなりやすいので、部屋間の移動も短くなり、生活動線にも優れています。
「ワイドスパン」はリビングを中心としてバルコニー側に3部屋が並ぶ間取りも多く、家族間でコミュニケーションを取りやすいのも魅力的。
リビングと居室の間に可動式の間仕切りを採用している間取りでは、普段は間仕切りを開けてリビングを広く使い、来客時には間仕切りを使って個室として活用するなど、空間を自由にアレンジできて便利です。
ただし窓が広くとられるワイドスパンでは、外気の影響を受けやすいため、夏は部屋が暑く、冬は寒く感じやすいかもしれません。
また来客時には、お客様と家族が顔を合わせる機会が多くなる点にも注意が必要です。
来客の多い家庭では、家族にとって負担にならないかよく考えましょう。
角(かど)住戸

間取り参考|エンクレストガーデン福岡「C7type 4LDK 82.67㎡」
※2024年12月26日時点での販売住戸間取り
「角住戸」とは、マンションのフロアの一番端に位置する間取りのこと。
他の住戸に隣接するのは1面のみで残り3方向は解放されているため、窓がたくさんあり、明るく開放感があるのが特徴です。
バルコニーが2方向または3方向についている物件も多く、洗濯物干しスペース以外にガーデニングなどの趣味も存分に楽しめるでしょう。
また隣の住戸と接する壁が少ないため、生活音のトラブルが少ないのもメリットのひとつ。
フロアの端ということで居住者に用のある人しか前を通らないため、プライバシーを確保しやすいのも嬉しいポイントです。
ただし、そもそもの物件数が少なく人気があるため、同じフロアのなかでも価格が高めに設定されていることも。
またフロアの端に位置するため、エレベーターから遠いケースもあるかもしれません。
センターイン

間取り参考|エンクレストガーデン福岡「C4type 3LDK+SC+FC 76.97㎡」
※2024年12月26日時点での販売住戸間取り
「センターイン」は家の中心近くに玄関がある間取りで、高級マンションに多く採用されています。
玄関を中心に各部屋が振り分けられているのが特徴で、各部屋への移動がしやすく、生活動線もスムーズ。
住戸を挟むようにバルコニーが設置されていることも多く、日当たりや風通しは抜群です。
基本的にLDKは玄関を入って左右どちらかに配置されているので、LDKがある側を来客スペース、そうでない側をプライベートスペースとすると、家族のプライバシーも尊重できるでしょう。
デメリットとしては、建築コストがかかるため価格が高いことや、希少な間取りのため物件数が少ないということが挙げられます。
マンションの間取り別におすすめの人を紹介

ここではマンション間取り別のメリット・デメリットを整理した上で、それぞれの間取りがどのような人におすすめなのか、みていきましょう。
田の字型
| メリット | デメリット |
| ・家族間のプライバシーを確保しやすい
・上下階が同じ間取りの場合、騒音問題が発生にしにくい |
・外廊下側の部屋は、窓の外を人が通るためプライバシーが確保しにくい |
マンションの間取りで最もポピュラーな「田の字型」は、基本的に全ての世帯におすすめです。
個室の独立性が高いことを考えると、特に家族間のプライバシーを重視したい人にぴったりでしょう。
ワイドスパン
| メリット | デメリット |
| ・間口が広く日当たりや風通しに優れている
・ホールが小さく、部屋間の移動が短い ・バルコニー側に3部屋が並ぶ間取りでは、家族間でコミュニケーションを取りやすい ・バルコニーが横に広い |
・外気の影響を受けやすい
・来客時にお客様と家族が顔を合わせやすい |
家族が顔を合わせる機会が多い「ワイドスパン」の間取りは、仲良しファミリーや小さな子どもがいる世帯におすすめ。
バルコニーが横に広いため、バルコニーを有効的に活用したいと考えている方にも最適の間取りです。
角(かど)住戸
| メリット | デメリット |
| ・3方向に窓があり、日当たりや風通しに優れている
・1面しか隣の住戸に接しておらず、生活音のトラブルが少ない ・居住者に用のある人しか前を通らない |
・選べる物件数が少ない
・同じフロア内では価格が高め ・エレベーターから遠いケースも |
フロア内で最も端に位置する「角住戸」は、プライバシーを確保したい人におすすめ。
隣は1つしか住戸がないので、ご近所問題が心配なご家族にも最適でしょう。
日当たりや風通しを重視したい人、開放感のある空間を求める人にもぴったりです。
センターイン
| メリット | デメリット |
| ・日当たりや風通しに優れている
・部屋間の移動がしやすく生活動線がスムーズ ・来客スペースとプライベートスペースを分けられる間取りが多い |
・価格が高い
・希少な間取りで選べる物件数が少ない |
家の中心近くに玄関がある「センターイン」の間取りは、生活のしやすさを重視したい人におすすめ。
家族と来客があまり顔を合わせないようにしたいという場合も、センターインの間取りが適しているでしょう。
「エンクレストガーデン福岡」で理想の間取りを見つけよう

マンションの間取りにはさまざまなタイプがあり、メリットやデメリットも異なります。
暮らしにフィットする間取り選びが、理想の住まい探しの第一歩となるでしょう。
今回ご紹介した間取りはすべて、福岡市中央区小笹に誕生予定の新築分譲マンション「エンクレストガーデン福岡」の間取りです。
エンクレストガーデン福岡では、今回ご紹介した以外にも豊富な間取りプランをご用意しておりますので、きっとあなたにぴったりの間取りが見つかるはずです。
またエンクレストガーデン福岡は、敷地内に小型スーパー「TRIAL GO」がテナントイン。
24時間営業となっておりますので、いつでも便利にお買い物をお楽しみいただけます。
スーパー併設マンションの魅力について、詳しくは以下の記事をご覧ください。
>>複合型マンションとは?住まい探しで考えたいスーパー併設マンションの魅力
エンクレストガーデン福岡が気になる方は、ぜひ地下鉄「六本松」駅2番出口より徒歩3分の場所にあるマンションギャラリーへお越しください。
専門スタッフが、エンクレストガーデン福岡の魅力について詳しくご案内させていただきます。
また、もっと手軽に知りたいとお考えの方には、オンラインで気軽に物件の詳細を確認できる「オンライン相談」がおすすめです。
間取りの特徴や設備のこだわりポイントなど、マンション選びに関するさまざまな疑問にお答えしますので、ぜひお気軽にご利用ください。
気になる方は、ぜひお早めにお問い合わせください。
検討段階の方も大歓迎!
下記より資料請求していただくと、間取りプラン等をお送りするとともに、価格詳細・支払い例が見られる限定サイトのパスワードをご案内いたします。
「気軽に相談してみたい」という方へ
オンライン相談なら、ご自宅から気軽にプロのアドバイスを受けられます。
オンライン相談のご予約はこちら
相談の流れを確認したい方はこちらの記事もご覧ください。
>> マンション選びの新常識!オンライン相談で気軽にマンションを知ろう
「実際に見てみたい」と思った方へ
マンションは実際に見学してみることで、間取りや設備の使い勝手、周辺環境などをより具体的にイメージできます。
エンクレストガーデン福岡を実際に見てみたい方は、地下鉄六本松駅2番出口から徒歩3分のマンションギャラリーにぜひお越しください。
見学の流れを確認したい方はこちらの記事もご覧ください。
>> 気軽にモデルルーム見学!憧れの暮らしを体験しよう!
あわせて読みたい!
CATEGORYカテゴリー
RECENT POSTS最新記事
- ZEH-M Oriented認定マンションとは?魅力や特徴を…
- 【2026年最新】福岡市でお得にマンション購入!補助金・優遇…
- 福岡市の新築マンションの買い時は今?価格相場やおすすめエリア…
- ペアローンで住宅ローン控除はお得になる?福岡の新築マンション…
- マンション買い替えを成功させるには?|ベストなタイミングと必…
- オール電化とガス併用。マンションを購入するならどちらを選ぶ?
- 福岡市の治安は本当にいい?最新データで見る安全度とおすすめの…
- マンションの長期修繕計画とは?安心して住み続けるために知って…
- 複合型マンションとは?住まい探しで考えたいスーパー併設マンシ…
- 最新マンションの内装はどうなってる?今のトレンドを解説
